
Характеристика готовых квартир, предлагаемых государственным предприятием «УКС города Гомеля»
для продажи через аукцион
|
Лот
№
|
Наименование объекта |
Краткая характеристика объекта |
Начальная цена продажи, руб. |
Задаток, руб. |
|
1 |
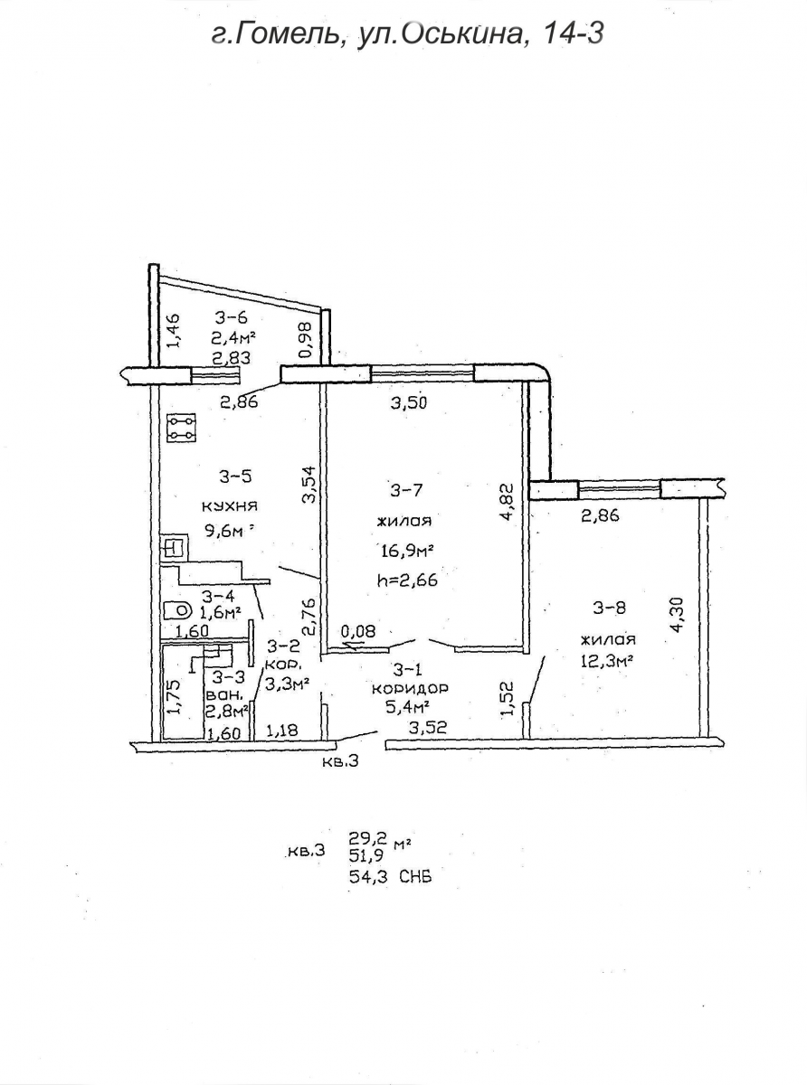
Квартира №3 по адресу: Гомельская обл., г.Гомель, ул.Оськина, д. 14, с инвентарным номером 350/D-195514 |
Двухкомнатная квартира расположена на 1 этаже, в 1 подъезде
Дом введен в эксплуатацию в 2010 году.
Общая площадь квартиры по СНБ- 54,3 кв.м. Общая площадь квартиры (без балкона) – 51,9 кв.м. Жилая площадь квартиры, 29,2 кв.м.
Конструктивная схема дома - КПД.
Квартира с полной отделкой (оклейка обоями, окраска стен в санузлах, окрашенный дощатый пол, в санузлах на полу плитка, межкомнатные двери, ванна с экраном).
Двери входные в квартиры – стальные, полной заводской готовности
Санузлы раздельные. Деревянные окна . В квартире балкон 2,4 кв.м. с кухни. Кухня 9,6 кв.м.
В квартире установлен унитаз, приборы учёта воды, газа.
|
90 300,0 |
1 800,00 |
|
2 |
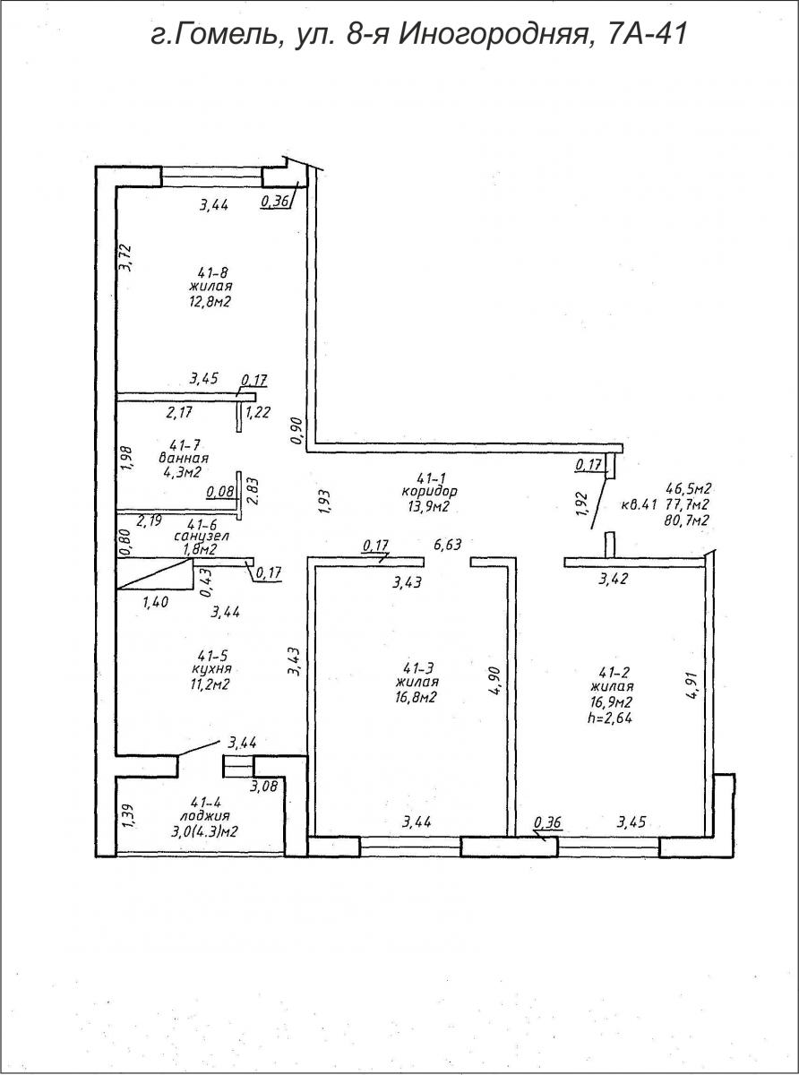
Квартира №41 по адресу: Гомельская обл., г.Гомель, ул.Иногородняя 8-я, д.7А, с инвентарным номером 350/D-335571 |
Трехкомнатная квартира расположена на 11 этаже, в 1 подъезде
Дом введен в эксплуатацию в 2016 году.
Общая площадь квартиры по СНБ- 80,7 кв.м. Общая площадь квартиры (без балкона) – 77,7 кв.м. Жилая площадь квартиры, 46,5 кв.м.
Конструктивная схема дома - КПД.
Квартира без выполнения отделочных работ. Санузлы раздельные.
В квартире лоджия 3,0 кв.м. с кухни. Кухня 11,2 кв.м.
В квартире установлен унитаз, приборы учёта воды, газа.
|
128 000,00 |
2 550,00 |
|
3 |
Квартира №43 по адресу: Гомельская обл., г.Гомель, ул.Разина, д.22, с инвентарным номером 350/D-351169 |
Трехкомнатная квартира расположена на 1 этаже, во 2 подъезде
Дом введен в эксплуатацию в 2017 году.
Общая площадь квартиры по СНБ- 88,5 кв.м. Общая площадь квартиры (без балкона) – 83,3 кв.м.Жилая площадь квартиры, 45,3 кв.м.
Конструктивная схема дома - КПД.
Квартира без выполнения отделочных работ
Санузлы раздельные. В квартире лоджия 2,8 кв.м. с кухни и 2,4 кв.м. с жилой комнаты. Кухня 9,7 кв.м.
В квартире установлен унитаз, приборы учёта воды, газа.
|
130 000,00 |
2 600,00 |
-Заявления подаются лично либо через своего представителя.
-Подача документов по почте не допускается. Заявления, поступившие позже установленного срока, не рассматриваются.
-После получения необходимых документов на участие в аукционе от участников аукциона и регистрации им выдаются билеты участников аукциона, которые после заключительной регистрации обмениваются на аукционные номера.
-В аукционе имеют право участвовать граждане Республики Беларусь, иностранные граждане и лица без гражданства, юридические лица, в том числе иностранные и международные, если иное не установлено законодательными актами или международными договорами Республики Беларусь, своевременно подавшие заявление на участие в аукционе с приложением необходимых документов, внесшие задаток по заявляемому лоту до подачи заявления, заключившие с организатором торгов соглашение и прошедшие заключительную регистрацию.
К заявлению на участие в аукционе прилагаются:
- документ, подтверждающий внесение суммы задатка на текущий (расчетный) банковский счет, указанный в извещении, с отметкой банка;
- копии учредительных документов и свидетельства о государственной регистрации юридического лица, их подлинники для последующего заверения копий организатором аукциона – для юридического лица, зарегистрированного в установленном порядке на территории Республики Беларусь;
-легализованные в установленном порядке копии учредительных документов, выписка из торгового реестра страны происхождения (должна быть произведена не ранее чем за шесть месяцев до подачи заявления на участие в аукционе) либо иное эквивалентное доказательство статуса юридического лица в соответствии с законодательством страны происхождения, документ о финансовой состоятельности, выданный обслуживающим банком или иной кредитно-финансовой организацией, с нотариально удостоверенными переводами на белорусский или русский язык – для юридического лица, не зарегистрированного в установленном порядке на территории Республики Беларусь.
При подаче заявления на участие в аукционе и заключении соглашения Организатору аукциона предъявляются:
- физическим лицом – документ, удостоверяющий личность;
- представителем физического лица – документ, удостоверяющий личность представителя, и нотариально заверенная доверенность;
- представителем юридического лица (в том числе уполномоченным должностным лицом) – доверенность, выданная юридическим лицом, или документ, подтверждающий полномочия должностного лица.
В случае отсутствия у физического лица текущего счета необходимо его открыть до подачи заявления.
Задаток для участия в аукционе перечисляется до подачи заявления, начиная с момента публикации извещения, до ________ по лоту №____.
Задаток, уплаченный участником аукциона, ставшим победителем (единственным участником несостоявшегося аукциона), будет засчитан в счет окончательной стоимости соответствующего предмета аукциона. Задатки, уплаченные участниками аукциона, не ставшими победителем аукциона (единственным участником несостоявшегося аукциона), Организатор аукциона возвращает безналичным платежом на их счета в течение 5 рабочих дней со дня проведения аукциона.
Участник аукциона имеет право до начала аукциона письменно отозвать свое заявление на участие в аукционе. Участнику, отказавшемуся от участия в аукционе, сумма внесенного им задатка возвращается в течение 5-ти рабочих дней со дня проведения аукциона.
Неявка участника аукциона на аукцион признается отказом в его участии. Сумма внесенного задатка возвращается по письменному заявлению участника аукциона в течение 5-ти рабочих дней со дня проведения аукциона.
Продавец вправе отказаться от проведения аукциона в любое время, но не позднее чем за 3 календарных дня до наступления даты его проведения.Аукцион проводится в соответствии с Положением о порядке продажи жилых помещений государственного жилищного фонда на аукционе, утвержденным постановлением Совета Министров Республики Беларусь от 17 ноября 2010г. N 1695. Шаг аукциона: 5%.
Победителем аукциона признается участник, предложивший наибольшую цену на аукционе. Лицом, приравненным к победителю, признается единственный зарегистрированный участник, выразивший согласие купить предмет аукциона по начальной цене, увеличенной на 5% (единственный участник несостоявшегося аукциона).
Победитель аукциона (единственный участник несостоявшегося аукциона) обязан: в течение 10-ти рабочих дней после подписания протокола аукциона возместить Организатору затраты на организацию и проведение аукциона, об утвержденной сумме которых уведомляется до начала аукциона; после подписания протокола аукциона, возмещения Организатору затрат на организацию и проведение аукциона и предоставления копии платежного документа, подтверждающего возмещение затрат, но не позднее 2 -х рабочих дней, подписать с Продавцом договор купли-продажи предмета аукциона; в течение 30-ти календарных дней с даты подписания договора купли-продажи выплатить Продавцу стоимость предмета аукциона, сформированную в установленном порядке.
Размер штрафа, уплачиваемый участником аукциона и (или) его победителем (единственным участником несостоявшегося аукциона) в случаях, предусмотренных законодательством и соглашением, составляет 2 000,00 рублей за каждый случай нарушения.



